SOLDSTC
SOLDSTC
SOLDSTC
SOLDSTC
Floorplan for High Street, Cheadle

Shop - Sold Subject to Contract High Street, Cheadle - £250,000

For Sale by Auction at a date to be announced (Unless previously sold), a RETAIL shop with planning permission for a Two Storey Extension (Investment Opportunity). Don't miss this one! - A Rare Opportunity to acquire a retail shop in the centre of Cheadle Village with planning permission to extend the ground floor and form a two bedroom apartment above. Planning consent was granted, application number DC059365 with works started and inspected by the Building Inspector on 21st August 2018. Consequently there is now an opportunity for a buyer to complete the scheme and either retain and let out for an annual income or sell on. Once complete it will provide a compact unit which from experience have always been sought after. To the rear is a public car park. Cheadle lies some either miles south of Manchester City Centre in a much sought after commuter belt. Both the M56/M60 motorways and A34 bypass are all close by.

Key Features

  • By Auction at a date to be announced (unless previously sold)
  • Freehold Site
  • Planning permission granted DC/059365
  • Works started (Building Inspection 221/08/18)
  • Retail Shop
  • Potential for flat above
  • Business Rates exempt

SHOP

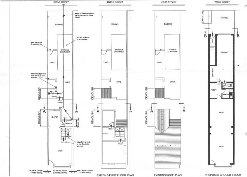
Measurements are taken from the architect's plans drawn up.
Existing Measurements:
Shop
Width 3.8m
Depth 9.2m

Stairs to First Floor

Front Room 3.8m x 3.7m
Landing Area 3.8m x 2.1m
Rear Room 2.6m x 2m
(incorporated temp kitchen/toilet)

Outside WC & Store (Now demolished) - Storage container

New Measurements

Shop 3.8m x 11m depth
Store Area 2m x 1.9m
Tea Room 1.78m x 1.5m
Sep WC 0.9m x 1.7m

Garage (8m x 3.8m to 2.6m)

Rear Entrance to FLAT

Hallway and Stairs to 1st Floor

Landing

Lounge (3.8m x 3.8m)

Kitchen/Dining Area (5m x 2.6m to 3m)

Utility Room (7.92mm x 0.61mm)

Bathroom/WC (2.6m x 2m)

Bedroom One (5m x 3.8m to 2.6m)

Bedroom Two (2.6m x 3.08m)

Outside

Parking area


Location

Similar Properties